Baugrundstück 680 m² mit rechtskräftiger Genehmigung, Svetvinčenat

  • Kode : 12565
  • Ort : Svetvinčenat
  • Grundstücksgröße : 680 m2

143.000 €

Anzahl der Aufrufe : 21

BESCHREIBUNG

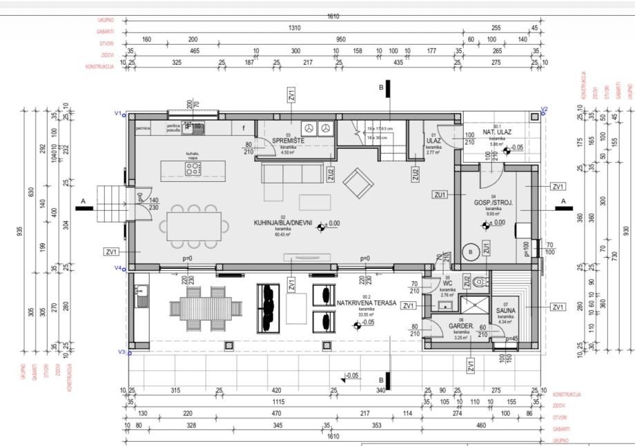
Zu verkaufen ist ein Baugrundstück mit einer Fläche von 680 m², gelegen in einer ruhigen Siedlung der Gemeinde Svetvinčenat, angrenzend an eine grüne Zone, die Privatsphäre und eine natürliche Umgebung gewährleistet.

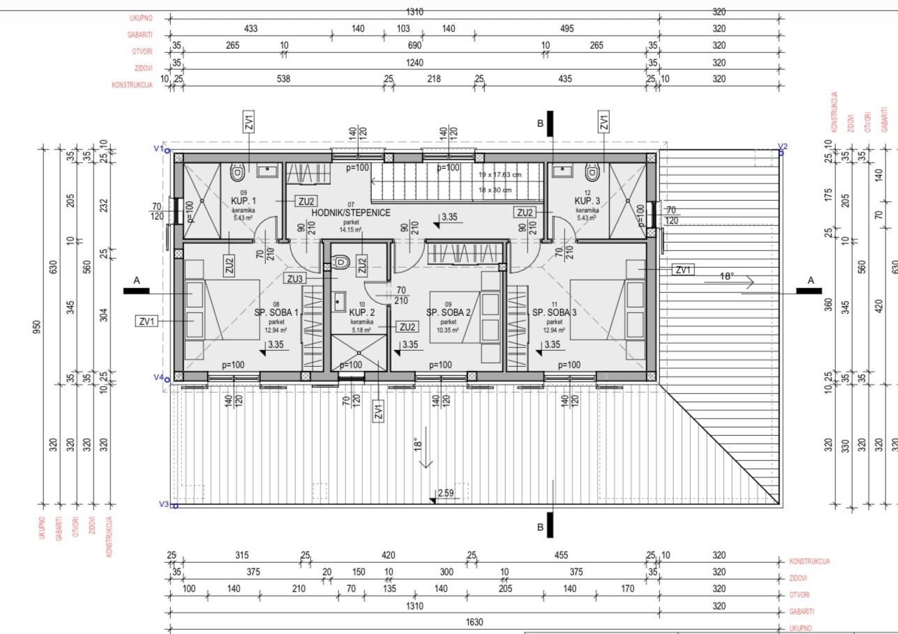
Das Grundstück verfügt über eine rechtskräftige Baugenehmigung für den Bau eines Einfamilienhauses mit Pool, insgesamt 192 m² groß.

Das Projekt umfasst:

3 Schlafzimmer im Obergeschoss
modernes Einfamilienhaus mit Pool
funktionale und zeitgemäße Raumaufteilung

Eine ausgezeichnete Gelegenheit, ein Einfamilienhaus oder ein Ferienhaus in einer ruhigen istrischen Umgebung zu bauen.

Für weitere rmationen kontaktieren Sie bitte:

Alle Daten auf diesen Websites werden nur zu Informationszwecken präsentiert, vor jeder Schlussfolgerung oder Aktivität, die auf Daten von diesen Seiten basiert, müssen alle Informationen in unserer Agentur überprüft werden.

KONTAKTIERE UNS

Verkaufen Sie eine Immobilie?