Kanfanar, modernes Haus im Rohbau-Stadium

  • Kode : 11107
  • Ort : Kanfanar
  • Wohnfläche : 210 m2
  • Grundstücksgröße : 700 m2
  • Entfernung zum Zentrum : 100 m

392.000 €

Anzahl der Aufrufe : 518

MERKMALE

  • Etagenzahl : 2
  • Anzahl Schlafzimmer : 3
  • Anzahl Zimmer : 3
  • Anzahl Badezimmer : 3
  • Meerblick : Ja
  • Parkplatz : Ja
  • Energieeffizienz : Nicht bekannt
  • Baujahr : 2025

BESCHREIBUNG

Zu verkaufen ist ein Haus im Rohbau in der Gemeinde Kanfanar, 20 Minuten von Rovinj entfernt.

Die Fenster mit elektrischen Rollläden sind bereits eingebaut, die Installationen für Strom und Wasser sind verlegt, ebenso wie die Installationen für die Fußbodenheizung.

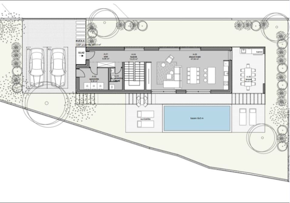
Das Haus hat ein modernes Design und einen funktionalen Grundriss:
Im Erdgeschoss befinden sich Arbeitsräume wie Abstellraum, Garderobe, Waschküche und WC, ein geräumiges Wohnzimmer und eine Küche mit Zugang zu einer großen Terrasse in der Sonne mit Pool.
Im Obergeschoss gibt es 3 Schlafzimmer, jedes mit eigenem Badezimmer, und eines davon hat Zugang zu einer großen Terrasse.

Das Haus bietet bereits vom Erdgeschoss aus einen Blick auf das Meer.
Der angegebene Preis gilt für das Haus im aktuellen Zustand und wird steigen, je weiter der Bau fortschreitet.

Der Preis für das fertige Haus beträgt 625.000 Euro.

Für weitere rmationen und Besichtigungen kontaktieren Sie bitte:

Alle Daten auf diesen Websites werden nur zu Informationszwecken präsentiert, vor jeder Schlussfolgerung oder Aktivität, die auf Daten von diesen Seiten basiert, müssen alle Informationen in unserer Agentur überprüft werden.

Anzeigen alle Immobilien Kanfanar

KONTAKTIERE UNS

Verkaufen Sie eine Immobilie?