Prekrasna kuća sa bazenom i teniskim terenom,Labin okolica

  • Šifra : 09150
  • Lokacija : Labin
  • Površina objekta : 193 m2
  • Površina parcele : 1756 m2

980.000 €

Broj pregleda : 448

ZNAČAJKE

  • Broj spavaćih soba : 3
  • Broj soba : 4
  • Broj wca : 1
  • Klima uređaj : Da
  • Bazen : Da
  • Energetska učinkovitost : Nije određeno

OPIS

Info 00385 98 592122 Roberta
LABIN srednjovjekovni gradić na brežuljku čije je staro ime Albona,te mjesto gdje se spaja bogatstvo arhitekture
s brojnim umjetničkim ateljeima, bogata gastronomska ponuda te razni turistički i kulturni sadržaji.

Ova prekrasna nekretnina nalazi se u mirnom naselju u okolici grada Labina,
vrhunski opremljena, atraktivnog interijera s iznimno zabavnim sportskim i wellness sadržajima.

Lokacija nudi mir i privatnost, a istovremeno je odlično prometno povezana.

Prilikom izgradnje i uređenja vodilo se računa o svakom detalju,kvaliteti izgradnje te vrhunskim materijalima.

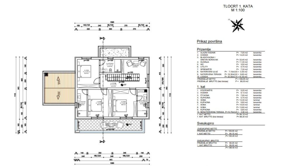
Proteže se kroz dvije etaže:
- prizemlje se sastoji od natkrivenog ulaza te ulaznog hola,spremišta,utility sobe,wc,
open space blagovaona,kuhinja i dnevni boravak sa velikim staklenim stijenama koje vode na
natk rivenu terasu( mirno mjesto za opuštanje uz kavu) te ljetnu kuhinju.
- kat se sastoji od tri spavaće sobe svaka sa svojom kupaonom,radna soba-čitaona,
te balkon s kojeg se pruža otvoren panoramski pogled.

Kuća je kompletno ograđena sa prostranim prilazom i parkingom te okružena uređenim travnjakom, zasađenim maslinama i zelenom ogradom.
Ljubitelji tenisa imaju na raspolaganju privatni teniski teren u punoj veličini.
Nekretnina je opremljena raznim društvenim igrama(mali nogomet, ping-pong(stolni tenis),bicikle.... te se ovdje stavlja naglasak na odmor i druženje na otvorenom.

Ovo je kuća pravi hedonistički raj za ljude koji žele uživati u intimi prostora,okruženju obitelji uz dobru zabavu i druženja,
a opet u blizini svih sadržaja koje grad nudi za svakodnevni život te mora.
Lokacija ove nekretnine, usklađenost ljepote i funkcije prostora čine ovu nekretninu idealnom investicijom:
- u turizam
-idiličan obiteljski život
-kao kombinacija oboje.

Svi podaci na ovim stranicama dani su informativnog karaktera, prije bilo kakvih zaključaka ili aktivnosti temeljenih na podacima s ovih stranica, sve podatke potrebno je provjeriti u našoj agenciji.

Pogledajte sve Nekretnine Labin

KONTAKTIRAJTE NAS

Prodajete nekretninu?