Prodaja samostojećih vila s bazenom u luksuznom, stambenom projektu, Labin! Vila E

  • Šifra : 10307
  • Lokacija : Labin
  • Površina objekta : 283 m2
  • Površina parcele : 2642 m2
  • Udaljenost od centra : 5000 m

772.000 €

Broj pregleda : 325

ZNAČAJKE

  • Broj katova : 2
  • Broj spavaćih soba : 4
  • Broj soba : 4
  • Broj kupaonica : 4
  • Parking : Da
  • Klima uređaj : Da
  • Energetska učinkovitost : A+
  • Godina izgradnje : 2025

OPIS

Prodajemo samostojeće vile s bazenom u novom stambenom projektu, blizina Labina.

Projekt se sastoji od 5 luksuznih vila, svaka villa se sastoji od prizemlja i kata.

Prizemlje se sastoji od modernog dnevnog dijela sa open space konceptom kuhinje, blagovaone i dnevnog boravka koji doprinosi skladu i funkcionalnosti. u prizemlju se također nalazi i spremište (unutarnje), prostorija za saunu/fitness te prijelaz na 2 natkrivene terase. Uz kuće nalazi se vanjska terasa s natkrivenom vanjskom kuhinjom. Terasa je popločena prefabriciranim betonskim
pločama. Vanjski bazen je dimenzija 9 x 5,3 m i sastoji se od plitkog dječjeg i dubljeg dijela, a u blizini se nalazi
vanjski tuš. Pomoćni objekt u funkciji vanjskog spremišta,površine 12 m2.

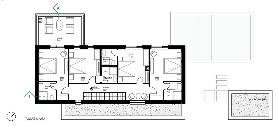
Na katu se nalazi hodnik i 4 spavaće sobe s pripadajućim kupaonicama.
Sobe su orijentirane na sjeverozapad.
Jedna od soba ima izlaz na krovnu terasu površine 17 m2.

Unutrašnja neto površine kuće E je 176 m2.

Predviđeno je postavljanje klima inverterskog sustava za regulaciju temperature, podnog grijanja na fain coil sistem za dodatnu udobnost, te još jedna prednost, postavljanje solarnih elektrana za smanjenje potrošnje energije.
Na krovu kuća postavljeni su fotonaponski moduli ukupne snage 5,46 kWp.

Ville se nalaze u ranoj fazi izgradnje, što predstavlja mogućnost dogovora oko odabira završnih materijala.


Blizina svih potrebnih sadržaja kao što su trgovina, škola, pošta, dom zdravlja, sportski sadržaji, restorani, čine ovu lokaciju odličnim izborom ukoliko se želite baviti turističkim iznajmljivanjem te tako brže vratiti uložena sredstva.

Kuća E
Ukupna površina parcele: 2642 m2
Uređena okućnica: 825 m2 od čega 703 m2 čine zelene
površine, a 122 m2 opločane površine vanjskih terasa
Parking: 138 m2(3 parkirna mjesta).

Rok završetka gradnje - lipanj 2025.


Za dodatne informacije, molimo kontaktirajte:

Svi podaci na ovim stranicama dani su informativnog karaktera, prije bilo kakvih zaključaka ili aktivnosti temeljenih na podacima s ovih stranica, sve podatke potrebno je provjeriti u našoj agenciji.

Pogledajte sve Nekretnine Labin

KONTAKTIRAJTE NAS

Prodajete nekretninu?