Prodaja stanova u izgradnji - novi stambeni kompleks, Pula!

  • Šifra : 11628
  • Lokacija : Pula
  • Površina objekta : 110 m2
  • Udaljenost od centra : 2000 m
  • Udaljenost od mora : 2500 m

350.000 €

Broj pregleda : 272

ZNAČAJKE

  • Kat : 2
  • Broj katova : 3
  • Broj spavaćih soba : 3
  • Broj soba : 3
  • Broj kupaonica : 2
  • Parking : Da
  • Garaža : Da
  • Energetska učinkovitost : A+
  • Godina izgradnje : 2025

OPIS

NOVOGRADNJA – MANJI STAMBENI KOMPLEKS U IZGRADNJI (3 ZGRADE U NIZU)

Na prodaju je manji stambeni kompleks u izgradnji koji se sastoji od tri moderne zgrade u nizu.
Svaka zgrada projektirana je kao stambena cjelina s ukupno četiri stana, raspoređenih kroz prizemlje i dva kata.

Stanovi su funkcionalnog rasporeda, s naglaskom na komfor, prirodno osvjetljenje i kvalitetne građevinske materijale. Svakom stanu pripada parkirno mjesto, a predviđena je i moderna energetski učinkovita oprema.

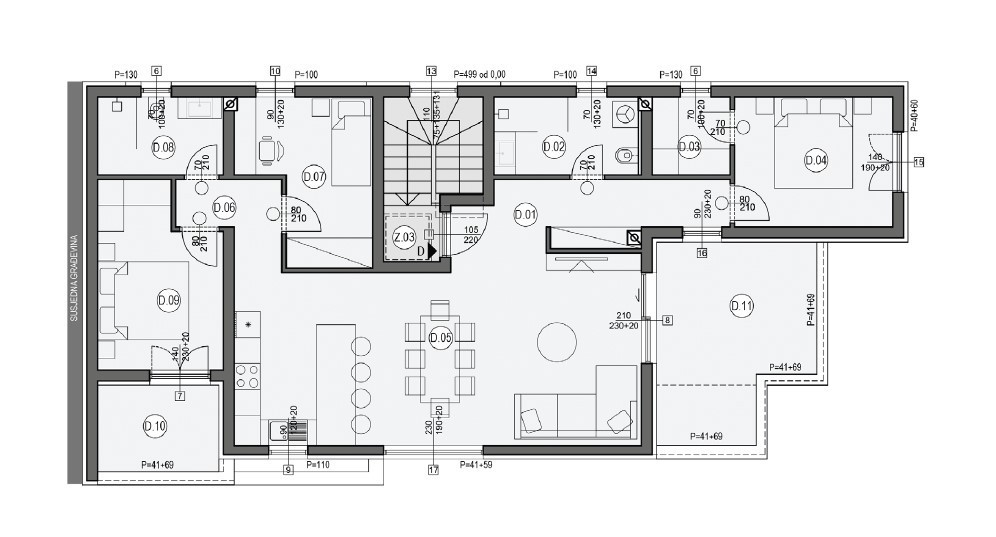
Stan , nalazi se na 2.katu i sastoji od: ulaznog prostora, dnevnog prostora s kuhinjom i blagavaonom, 3 spavaće sobe, 2 kupaone, hodnika, garderobe, balkona.
Kompleks se nalazi na mirnoj lokaciji idealnoj za obiteljski život ili kao investicija za najam, s lakim pristupom svim bitnim sadržajima – trgovinama, školom, javnim prijevozom i plažama.

Projekt je u fazi izgradnje.
Stanu pripada garaža i parkirno mjesto.


Za dodatne informacije, molimo kontaktirajte:

Svi podaci na ovim stranicama dani su informativnog karaktera, prije bilo kakvih zaključaka ili aktivnosti temeljenih na podacima s ovih stranica, sve podatke potrebno je provjeriti u našoj agenciji.

Pogledajte sve Nekretnine Pula

KONTAKTIRAJTE NAS

Prodajete nekretninu?