Prodaja zemljišta 511 m2 s građevinskom dozvolom i plaćenim doprinosima, Medulin!

  • Šifra : 09283
  • Lokacija : Medulin
  • Površina parcele : 511 m2
  • Udaljenost od mora : 1500 m

239.000 €

Broj pregleda : 459

OPIS

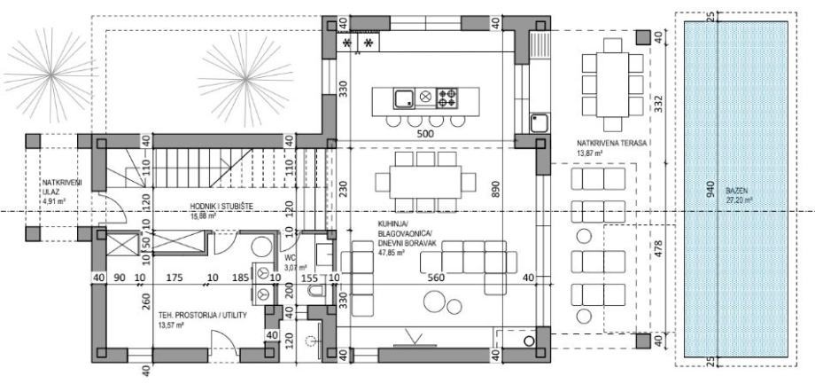
Prodajemo građevinsko zemljište s projektom, građevinskom dozvolom i uplaćenim komunalijama.
Zemljište se nalazi na lijepoj lokaciji, okruženo zelenilom, 1,5 km udaljeno od mora.

Zemljište ima projekt za katnicu s bazenom, veličine 200m2.
Kuća za odmor posjeduje dnevni boravak s kuhinjom i blagavaonom, 3 spavaće sobe, 2 kupaone, toalet, spremište, terasu i sunčalište uz bazen, vanjski tuš i vanjsku kuhinju.

Za dodatne informacije, molimo kontaktirajte:

Svi podaci na ovim stranicama dani su informativnog karaktera, prije bilo kakvih zaključaka ili aktivnosti temeljenih na podacima s ovih stranica, sve podatke potrebno je provjeriti u našoj agenciji.

Pogledajte sve Nekretnine Medulin

KONTAKTIRAJTE NAS

Prodajete nekretninu?