Vodnjan. Casa in costruzione con piscina e Svetvinčenat, terreno con permesso di costruzione!

  • Codice : 08422
  • Località : Sanvincenti
  • Superficie di immobile : 111 m2
  • Superficie di particela : 614 m2

438.000 €

Numero di visualizzazioni : 314

CARATTERISTICHE

  • Numero di piani : 2
  • Numero di camere da letto : 3
  • Numero di camere : 3
  • Numero di bagni : 2
  • Parcheggio : Si
  • Aria condizionata : Si
  • Efficienza energetica : A
  • Anno di costruzione : 2024

DESCRIZIONE

Vendiamo due proprietà:

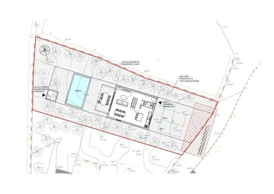
Vodnjan. Casa in costruzione con piscina, situata in una zona tranquilla alla fine del villaggio. La casa è composta da piano terra (soggiorno, sala da pranzo e cucina in open space, una camera da letto, bagno, ripostiglio) e primo piano (due camere da letto e un bagno). La terrazza esterna misura 23 m², mentre la piscina è di 28 m². La casa ha accesso da una strada pubblica e il riscaldamento è previsto tramite una pompa di calore.

Svetvinčenat. Terreno edificabile di 545 m² con permesso per costruire una casa con piscina. Sul terreno sono previsti una casa con piano terra e primo piano, una piscina esterna, un ripostiglio e due posti auto. Gli allacciamenti per elettricità e acqua sono garantiti.

Tutti i dati su questi siti web sono presentati solo a scopo informativo, prima di qualsiasi conclusione o attività basata sui dati di queste pagine, tutte le informazioni devono essere verificate nella nostra agenzia.

Guarda tutte Immobili Sanvincenti

CONTATTACI

Vendete un immobile?