Čudovita hiša s tremi etažiranimi apartmaji v starem mestnem jedru Poreča!

  • Koda : 09784
  • Lokacija : Poreč
  • Velikost stavbe : 310 m2
  • Velikost parcele : 161 m2
  • Oddaljenost od centra : 50 m
  • Oddaljenost od morja : 100 m

1.166.000 €

Število ogledov : 381

LASTNOSTI

  • Število nadstropij : 3
  • Število spalnic : 7
  • Število sob : 7
  • Število kopalnic : 5
  • Klima : Da
  • Energetska učinkovitost : A+

OPIS

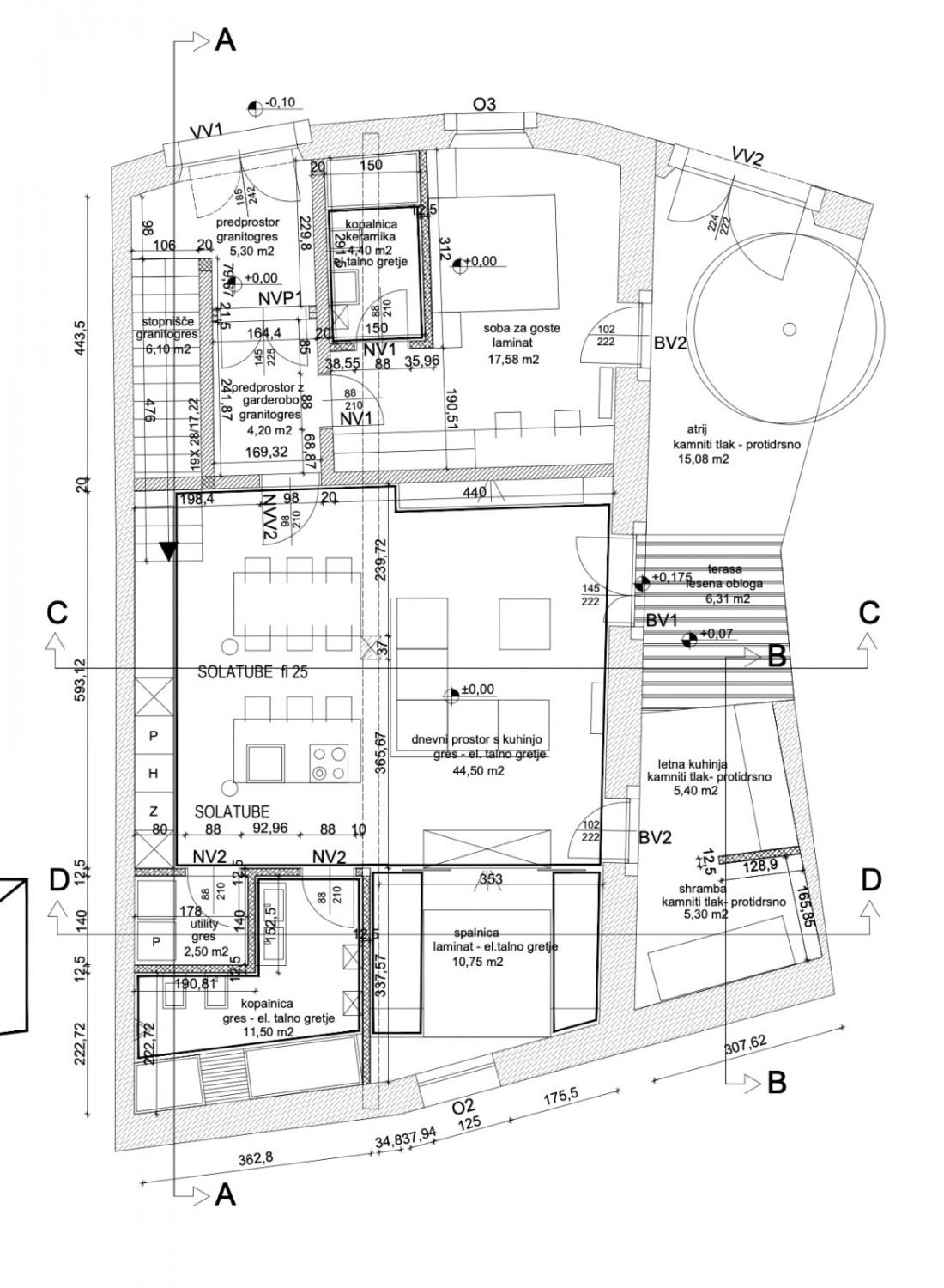
Prodajamo izjemno lepo in moderno hišo v središču Poreča.

Hiša obsega tri etaže, vsaka etaža ima svoje stanovanje.
Stanovanje v pritličju vključuje predprostor, garderobo, dnevno sobo s kuhinjo in jedilnico, 2 spalnici, 2 kopalnici, pralnico ter dvorišče s pokrito teraso in letno kuhinjo.
Stopnice vodijo v prvo nadstropje, kjer so predprostor, hodnik, dnevna soba z jedilnico, kuhinja, 3 spalnice, 2 kopalnici in balkoni.
V drugem nadstropju je dnevna soba s kuhinjo in jedilnico, 2 spalnici in kopalnica.

Za dodatne informacije kontaktirajte:

Vsi podatki na teh spletnih straneh so zgolj informativne narave, pred kakršnimi koli sklepi ali aktivnostmi na podlagi podatkov s teh strani je potrebno vse podatke preveriti v naši agenciji.

Oglejte si vse Nepremičnine Poreč

KONTAKTIRAJ NAS

Prodajate nepremičnino?