Hiša v Motovun

  • Koda : 07921
  • Lokacija : Motovun
  • Velikost stavbe : 220 m2
  • Velikost parcele : 350 m2
  • Oddaljenost od centra : 16000 m
  • Oddaljenost od morja : 30000 m

215.000 €

Število ogledov : 1035

LASTNOSTI

  • Število nadstropij : 2
  • Število spalnic : 3
  • Število sob : 3
  • Število kopalnic : 2
  • Energetska učinkovitost : Ni določeno
  • Leto izdelave : 1920

OPIS

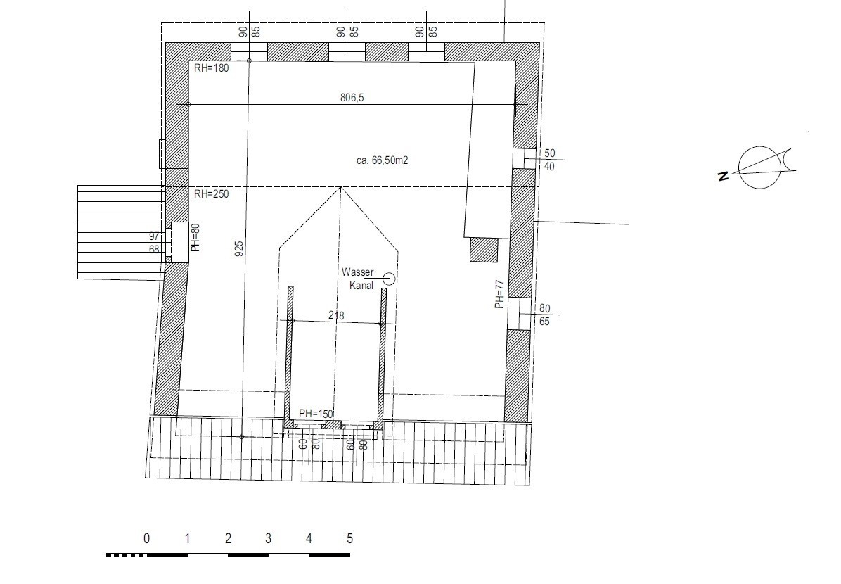
Prodamo hišo cca. 15 km od Buzeta in 10 km od Motovuna manjšega mesta. Hiša ima pritličje in nadstropje.
Hišo je treba dokončati od znotraj.
Manjkajo vrata in okna. Etaže, zadnja faza voda in elektrika. Elektrika je pri hiši, voda pa pred hišo.

Vsi podatki na teh spletnih straneh so zgolj informativne narave, pred kakršnimi koli sklepi ali aktivnostmi na podlagi podatkov s teh strani je potrebno vse podatke preveriti v naši agenciji.

Oglejte si vse Nepremičnine Motovun

KONTAKTIRAJ NAS

Prodajate nepremičnino?