Prodaja - građevinsko zemljište s projektom za izgradnju vile prizemnice, Žminj V1

  • Šifra : 11011
  • Lokacija : Žminj
  • Površina parcele : 1375 m2
  • Udaljenost od centra : 8200 m
  • Udaljenost od mora : 28000 m

92.100 €

Broj pregleda : 436

OPIS

Na prodaju je atraktivno građevinsko zemljište smješteno u srcu Istre, između povijesnih gradića Gračišća, Lindara i Žminja.
Parcela se nalazi na blagom uzvišenju, okružena hrastovom šumom, što pruža savršeno okruženje za sve koji cijene prirodu, mir i privatnost.

Osnovne informacije:
-Površina parcele: 1.375 m²
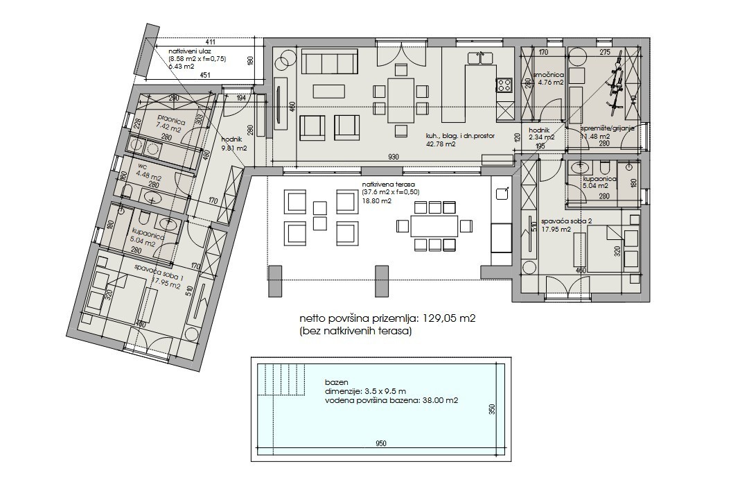
-Neto površina kuće: 129 m² unutarnjeg prostora
-Natkrivena terasa: 38 m²
-Natkriveni ulaz: 8 m²
-Broj etaža: prizemnica
-Parkirna mjesta: 2

Projekt predviđa kombinaciju suvremene arhitekture i tradicionalnog mediteranskog stila, s naglaskom na prirodne materijale poput kamena, drva i betona. Velike staklene stijene povezuju unutarnje prostore s okolnim krajolikom, pružajući otvoren pogled na prirodu i bazen.

Raspored prostorija

Prizemlje: otvoreni koncept dnevnog boravka, kuhinje i blagovaonice, gospodarska prostorija s toaletom te spavaća soba s vlastitom kupaonicom. Iz dnevnog dijela izlazi se na natkrivenu terasu i bazen.

Podovi su obloženi parketom, dok su u kupaonicama keramičke pločice.

Značajke:
-Grijanje i hlađenje putem toplinske pumpe
-Podno grijanje u kupaonicama
-Fan-coil sustav u ostalim prostorijama
-Kamin na drva u dnevnom boravku
-Bazen površine 38 m² s kamenom oblogom, mozaik-pločicama i sunčalištem

Udaljenost od mora: 28 km

Prekrasna mediteranska vila koja spaja modernu udobnost i tradicionalni istarski šarm. Smještena u mirnom dijelu središnje Istre, okružena šumom, a opet u blizini slikovitih gradića. Idealna za odmor ili kao investicija.

Za dodatne informacije, molimo kontaktirajte:

Svi podaci na ovim stranicama dani su informativnog karaktera, prije bilo kakvih zaključaka ili aktivnosti temeljenih na podacima s ovih stranica, sve podatke potrebno je provjeriti u našoj agenciji.

Pogledajte sve Nekretnine Žminj

KONTAKTIRAJTE NAS

Prodajete nekretninu?