Prodaja luksuznih stanova na ekskluzivnoj lokaciji, Pješčana uvala, Pula!

  • Šifra : 08471
  • Lokacija : Medulin
  • Površina objekta : 102.08 m2
  • Površina parcele : 40 m2
  • Udaljenost od mora : 400 m

476.250 €

Broj pregleda : 131

ZNAČAJKE

  • Kat : Prizemlje
  • Broj katova : 3
  • Broj spavaćih soba : 2
  • Broj soba : 2
  • Broj kupaonica : 2
  • Pogled na more : Da
  • Parking : Da
  • Garaža : Da
  • Klima uređaj : Da
  • Energetska učinkovitost : A+
  • Godina izgradnje : 2024

OPIS

Novi luksuzni projekt, Pješana uvala!

Projekt u izgradnji se sastoji od dvije zgrade, svaka ima tri etaže i na svakoj etaži 2 stana.

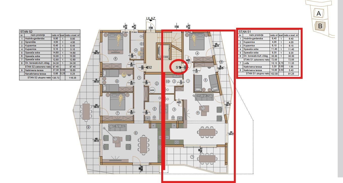
Stan S1, nalazi se u prizemlju zgrade B, površine 102.08m2 (neto površine 91.25 m2) i sastoji od: hodnika s garderobom, 2 spavaće sobe, 2 kupaone, dnevnog boravka s kuhinjom i blagovaonom te prostrane loggia-e i natkrivene terase. Stan ima vrt od 40 m2 (neto koef 4m2).

Stanu pripadaju 2 parkirna mjesta koja se obavezno dodatno kupuju.
Cijena 1 parkirnog mjesta iznosi: 12.500 eura.

Za dodatne informacije, stojimo na usluzi:

Svi podaci na ovim stranicama dani su informativnog karaktera, prije bilo kakvih zaključaka ili aktivnosti temeljenih na podacima s ovih stranica, sve podatke potrebno je provjeriti u našoj agenciji.

Pogledajte sve Nekretnine Medulin

KONTAKTIRAJTE NAS

Prodajete nekretninu?